The Khabar Xpress 09 फरवरी 2026। शहर में भूमाफियाओं के हौसले इस कदर बुलंद हैं कि अब उन्हें न तो प्रशासन का खौफ है और न ही जनता की आवाज का डर। ताजा मामला सरदारशहर रोड का है, जहां आईटीआई कॉलेज के पास स्थित ‘बॉम्बे कॉलोनी-II’ और अब चर्चा में आई ‘न्यू बॉम्बे कॉलोनी-II’ के बीच भूमि के खसरा नंबरों और मास्टर प्लान की सड़कों को लेकर एक बड़ा खेल सामने आया है।
क्या है पूरा मामला ?
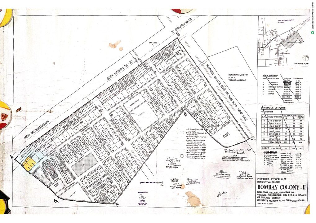
जानकारी के अनुसार, आईटीआई कॉलेज के पूर्व दिशा में वर्ष 2013 में नगरपालिका श्रीडूंगरगढ़ द्वारा अनुमोदित एक कॉलोनी काटी गई थी। 12.10 हेक्टेयर (करीब 47.84 बीघा) में फैली इस कॉलोनी में श्रीडूंगरगढ़ के खसरा नंबर 1061, 1062, 1063, 1064 व 1065 तथा जैतासर गांव के खसरा नंबर 813, 814, 817 व 818 शामिल थे। इस कॉलोनी का लेआउट प्लान बाकायदा तहसीलदार, पटवारी और बीकानेर एसटीपी विभाग द्वारा अनुमोदित है।

एक ही जमीन पर दो नक्शों का मायाजाल
हैरानी की बात तब सामने आई जब बाजार में ‘न्यू बॉम्बे कॉलोनी-II’ का एक नया लेआउट चर्चा में आया। जांच में पाया गया कि यह नई कॉलोनी उन्हीं खसरा नंबरों (814, 817, 818) पर बसाई जा रही है, जो पहले ही पुरानी कॉलोनी के नाम पर बेचे जा चुके हैं।
बड़े सवाल:
- अगर 814, 817 और 818 नंबर खसरों पर पहले ही कॉलोनी कट चुकी थी, तो अब नई कॉलोनी कैसे बसाई जा रही है ?
- क्या पहले वाले खसरे गलत थे या अब जो नक्शा दिखाया जा रहा है, वह फर्जी है ?
- क्या किसी रसूखदार नेता या पार्षद के दबाव में सरकारी भूमि या रिकॉर्ड के साथ हेरफेर किया गया है ?

मास्टर प्लान की सड़क का ‘वजूद’ खत्म…
सबसे गंभीर विषय यह है कि पुराने अनुमोदित लेआउट में श्रीडूंगरगढ़ के मास्टर प्लान के अनुसार सरदारशहर रोड से नेशनल हाईवे तक एक 150 फीट चौड़ी बाईपास रोड दर्शाई गई थी। लेकिन नई कॉलोनी के लेआउट से यह सड़क पूरी तरह गायब है।

देखे वीडियो….
https://www.facebook.com/share/v/18fEnr4MYa
खतरे में खरीदार
यदि कोई अनजान खरीदार इस नए लेआउट के झांसे में आकर प्लॉट लेता है और भविष्य में सरकार मास्टर प्लान के तहत भूमि अधिग्रहण करती है, तो वह व्यक्ति सड़क पर आ जाएगा। क्या प्रशासन जानबूझकर भूमाफियाओं को जनता की गाढ़ी कमाई लूटने की छूट दे रहा है?
प्रशासन की भूमिका संदिग्ध…
बिना प्रशासनिक मिलीभगत के इतना बड़ा रिकॉर्ड परिवर्तन संभव नहीं लगता। जैतासर और श्रीडूंगरगढ़ के राजस्व अधिकारियों की कार्यप्रणाली अब जांच के घेरे में है। क्या प्रशासन भूमाफियाओं के हाथों की कठपुतली बन गया है या फिर इन फाइलों के नीचे भ्रष्टाचार की गहरी परतें दबी हैं ? यह पूरे क्षेत्र में चर्चा और जांच का विषय बना हुआ है।
अभी तो कहानी की शुरुआत है…. जब कहानी शुरू हुई है तो कुछ गड़े मुर्दे भी उखाड़े जायेंगे उसके लिए थोड़ा इंतज़ार करे…










